理想的家,总是能够带给人幸福与愉悦。同样,在营造理想的家的过程里,也可能拥有温暖与感动。
有这样一群设计师,他们是屋主知心又贴心的好朋友,也是家的塑造者,在他们的世界里,爱与尊重,让他们拥有无限的设计热情,对他人以及对生活的理解,让他们懂得怎样做能够让日子更加鲜活动人。在中国真实屋主分享和获取家居生活灵感与装修经验的社区“好好住”里,这些生长于日常的设计高手,正以自己的方式,让平凡的日子变得非凡,让寻常的生活变得超常。
接下来,北京头条将在“好好住”中,与你一同发掘那些充满智慧巧思的设计答案。
(以下内容选自“好好住APP 营造家”)
今天给大家推荐的这套作品,来自好好住认证设计师@夏天设计工作室。
这是一个三口之家的精装修别墅,层高近5米,拥有一个超大的地下室。由于别墅地上还有300平米,而且是精装交付,地上部分就足够全家人生活和居住,反而面对这个超大的地下室有些束手无策。一开始,面对这个开放商半卖半送的地下室空间,业主感觉很是鸡肋——装修需要投入不小的预算,但是担心受制于采光潮湿等因素又得不到很好的利用。
而设计师夏天却以大英图书馆巨大的书架为灵感,巧妙地将这个原本「鸡肋」的地下空间打造成一个充满阳光、知识和运动的「图书馆」,同时还满足了保姆房、洗衣房、收纳等辅助功能。改造完成后,这个原本昏暗的地下空间,不仅成为业主全家最喜欢相聚的场所,更成为了整个小区孩子们的「网红」打卡乐园,每周在这里都会举办全小区小朋友的「早教」课堂。
一起来看看吧!
ABOUT ROOM
房屋信息
户型 3 室
使用面积 200 ㎡
装修花费 80.0万元
房屋位置 上海 青浦
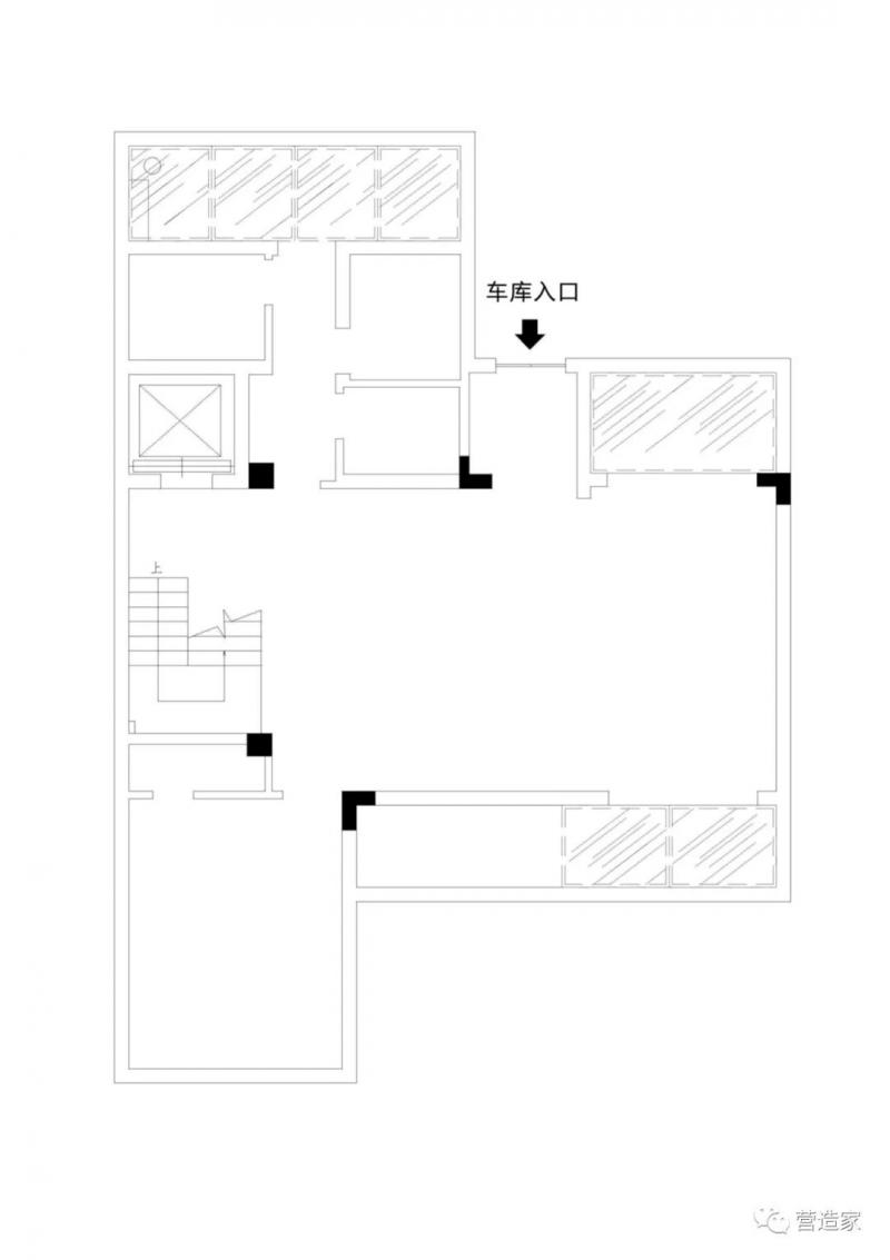
▲@夏天设计工作室:原始户型图。
▲@夏天设计工作室:为了消除空间的「地下感」,设计师结合房子的原有结构,增加了三个带天窗的采光庭院,布置在通往车库的入口处、通向一层的楼梯处以及主要功能空间处,使得无论以任何方式进入地下室都能得到充足的光线,而主要功能的使用也有自然光的照射。
▲@夏天设计工作室:层高有4.8米,用钢结构搭建出了局部隔层,增加使用面积,同时利用空间错落创造出孩子上下活动的空间。用原木板材对孩子活动的区域做了包裹,在楼梯处设计了滑梯、游戏空间,木质地台增加了孩子的活动场地,一整面墙的书架则提供了良好的文化氛围。
▲@夏天设计工作室:改造后的下层平面。
▲@夏天设计工作室:改造后的上层平面。
玄关
▲@夏天设计工作室:与很多住宅区一样,这个别墅群采用的是地下停车、地库入户的模式。全家每天出行主要靠汽车,也就是说,相比位于一层的主入口,从地下室进出更为频繁。一个在地下设置「花园」和「大门」,把地下室变成第一客厅的想法应运而生。
▲@夏天设计工作室:从车库出来,首先是进入这个有些户外感觉的「庭院」,光线充足又遮风避雨。通过一个平衡雕塑艺术品的引导,在院门外更换好拖鞋,进入扑面而来的阅读空间。
▲@夏天设计工作室:墙面的硅藻泥、地面的水磨石与大面老钢窗的搭配,勾勒出的精致的庭院氛围。同时在院墙上贴心的装上了壁灯,方便夜间或自然光线不好时进出。
客厅
▲@夏天设计工作室:为了让自然光线均匀的渗透进空间的每个角落,整个地下空间采用了开放式布局。这样一来,孩子的活动也更加的无拘无束。
▲@夏天设计工作室:从地下室地面到地台,从地台到隔层,再从隔层到达一楼,多平台的设置消解了上楼给人带来的疲劳感,也使得空间更加接近孩子的趣味和尺度。在下层可以奔跑嬉戏,在平台上可坐可卧,往返上层平台还可以玩滑滑梯,孩子的天性得到了充分的释放。
▲@夏天设计工作室:书架占据了整个墙面,高处的取放需要使用梯子,而每次搬动梯子会觉得吃力。我们受到大英图书馆的启发,设计了可以左右滑动的梯子,平时不用时收起来,取物也更加方便。
▲@夏天设计工作室:让我们非常有成就感的是,这个书架真的让宝宝爱上了阅读,平时没事就会静静得坐在书架边看书。
▲@夏天设计工作室:公共区域的一侧,结合收纳柜设计了妈妈与宝宝共处的空间。
▲@夏天设计工作室:特意设计的小空间拉近了妈妈与宝宝的距离,空间贴近儿童的尺度让宝宝能迅速安静下来,非常有安全感。
▲@夏天设计工作室:除了孩子的活动,这个空间的布局也兼顾了大人的尺度。
儿童房
▲@夏天设计工作室:楼梯下方的空间没有浪费,结合孩子的尺度设计了一个宝宝学会独处和培养自主意识的空间。受制于楼梯的高度,大人很难进入,这个空间也就成了宝宝的领地。
▲@夏天设计工作室:温暖的灯光,柔软的地垫,孩子在享受童年乐趣的同时也满满成长。所有宝宝高频活动的区域都做了软垫保护。
▲@夏天设计工作室:加宽了楼梯的钢结构,设计了这个滑梯,大人走,孩子滑,一家人其乐融融。滑梯下方设置了软垫,起到了很好的缓冲和保护作用。
▲@夏天设计工作室:楼梯一侧设计了方便宝宝涂鸦的黑板墙。
厨房
▲@夏天设计工作室:尽管楼上有餐厨区域,但是由于上下不方便,在地下室也同样设计了一个水吧区域,宝宝玩渴了可以很方便的喝上一杯妈妈鲜榨的果汁。
▲@夏天设计工作室:吧区采用了非常简约的设计,不仅能服务到活动区,也能照顾到一侧的健身区。
▲@夏天设计工作室:健身房视角的吧台。
卫生间
▲@夏天设计工作室:同小区的几个宝宝和他们的父母会经常来串门和上课,所以卫生间成人和儿童都可以使用的高低台盆。卫生间的瓷砖也挑选了充满几何感的六角形满足宝宝的好奇心。
▲@夏天设计工作室:与之相呼应的是大小洁具的设置,小号的洁具能够帮助宝宝从小养成独立上厕所的好习惯。
书房
▲@夏天设计工作室:上层的公共空间被设计成了大人办公的空间。
▲@夏天设计工作室:业主坐在高处就可以轻松的照看到下层宝宝的活动和状况,宝宝的活动空间照看无死角,这样爸爸妈妈就可以放心的处理手头的工作。
▲@夏天设计工作室:通过玻璃栏杆,宝宝也能看到专注工作的父母。
▲@夏天设计工作室:从孩子的活动平台看向书房。
走廊
▲@夏天设计工作室:走道空间采用玻璃扶手,最大限度得增加了上下两层空间的通透性,使得空间非常通透和有趣。
编辑/赵晓笠 大牙
































